Jump to: Informational Brochure & Narrative Video | Meeting Minutes
May 8th update:
Unable to attend one of the community meetings? No worries! Our friends at MMCTV recorded one and put together a video for us.
March 23rd updates: Join us for an upcoming community meeting to see early design concepts from our architects, share your ideas, and help shape the future of our library.
Check out the latest design here.
Upcoming Meeting Dates:
Monday, March 30 | 11:00 AM – 12:30 PM Community Meeting Presentation (light lunch provided)
Tuesday, April 7 | 4:00 – 5:00 PM – Ask the Architect!
Monday, April 13 | 7:00 – 8:30 PM Community Meeting Presentation (light refreshments provided)
Saturday April 18 | 10:30 AM – 12:00 PM Community Meeting Presentation (light refreshments provided)
Each session will include a short presentation followed by time to explore design ideas and speak with the architects, library staff, and members of the Board of Trustees.
We’d love to hear from you—stop by and be part of the conversation!
February 27, 2026: We’re continuing to work on refining plans with the architects. You can check out the latest designs here in this PDF.
Again, nothing here is set in stone. We’ll have community meetings this spring to get more of your input. Until then, if you’ve got thoughts on the plans, please let us know by emailing expansion@drml.org
We also want to let you know that all this preliminary design work is being paid for through a gift from anonymous donor. We are so grateful for the support.
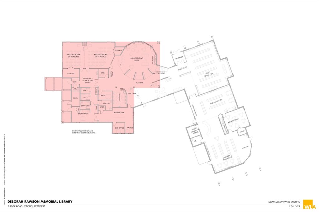
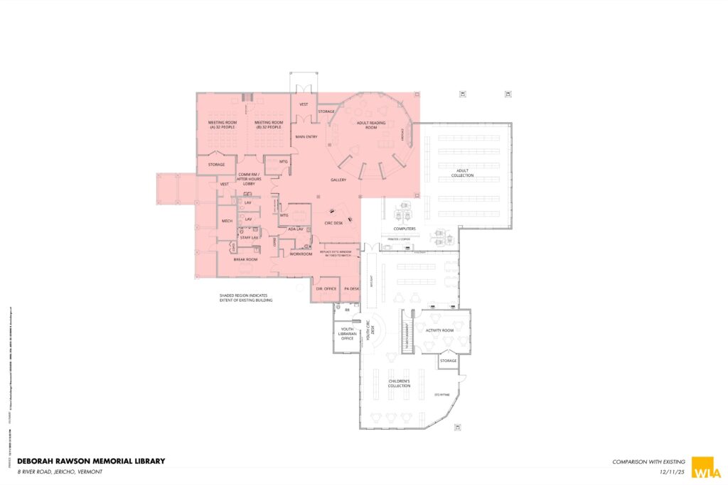
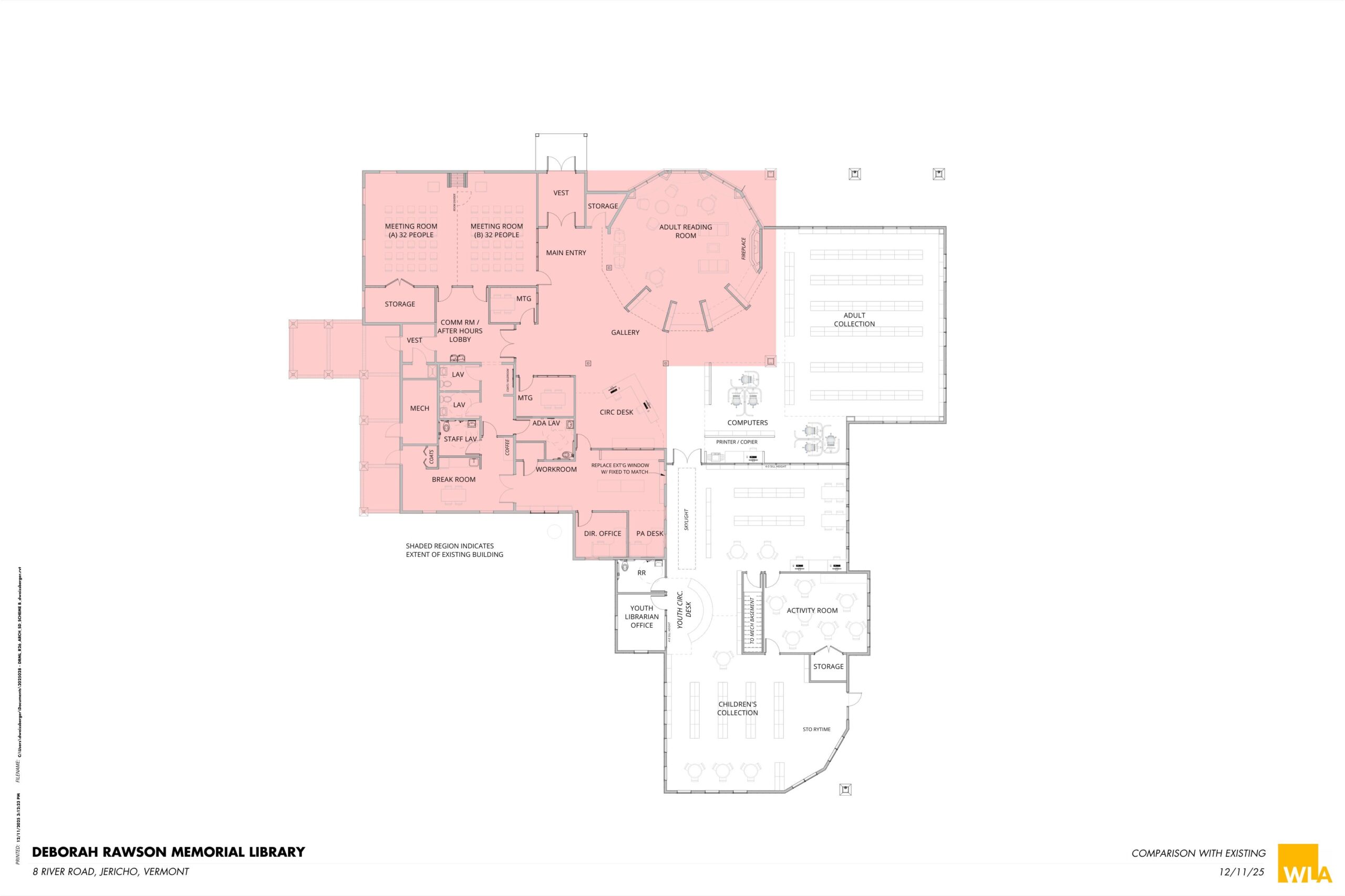
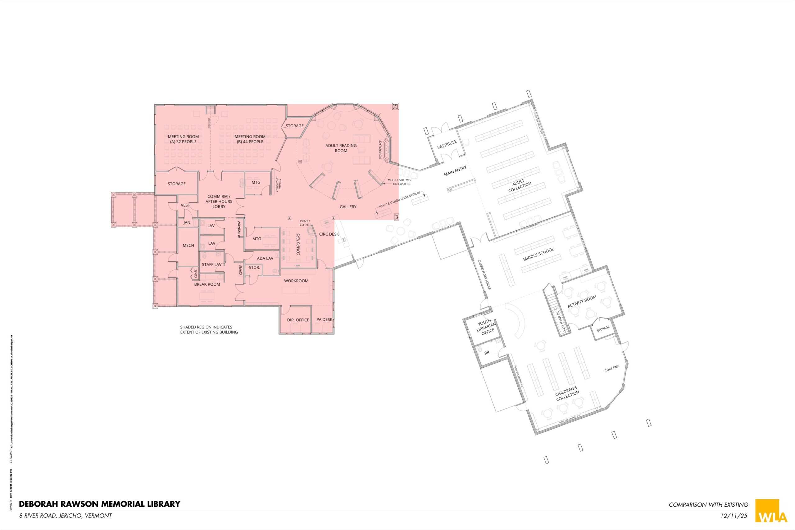
January 19, 2026: We have tentative plans to share! Below you will find images of the two potential expansion plans for our library; the potential interior design as well as the overlay of the current building so you can get oriented. Click on the images to make them larger.
It’s important to note that nothing here is final. We still have plenty of time to edit the design so that it will work the best for our whole community.
If you’ve got questions, comments or want to find out how to get more involved, please email expansion@drml.org




Click here to download a copy of the informational brochure.

Building Committee Minutes and Recordings
Building Committee Meeting Agenda for October 8, 2025
- Building Meeting Minutes – October 8, 2025 (draft)
- Building Meeting Recording – October 8, 2025
- Building Meeting Minutes – September 10, 2025 (final)
- Building Meeting Recording – September 10, 2025
- Building Meeting Minutes – August 13, 2025 (final)
- Building Meeting Recording – August 13, 2025
- Architect Kickoff Meeting Recording – August 6, 2025
- Architect Kickoff Meeting Notes – August 6, 2025
- Architect Interview Minutes – July 14, 2025 (final)
- Architect Interview Meeting Recording – July 14, 2025
- Architect Interview Minutes – July 7, 2025 (final)
- Architect Interview Recording – July 7, 2025
- Building Meeting Minutes – May 21, 2025 (final)
- Building Meeting Recording – May 21, 2025
- Building Meeting Notes – April 9, 2025
- Building Meeting Recording – April 9, 2025
- Building Meeting Notes – March 12, 2025
- Building Meeting Recording – March 12, 2025
- Building Meeting Notes – February 12, 2025
- Building Meeting Recording – February 12, 2025
- Building Meeting Notes – December 11, 2024
- Building Meeting Recording – December 11, 2024
- Building Meeting Notes – November 13, 2024